Fusina RE snc

Laden zu verkaufen - Bozen - RESCHENSTR.

Laden zu verkaufen - Bozen - RESCHENSTR.
205.000 €
  2 Zimmer
  43 QM
 0. Stock
  Verkauf
  Bozen - Don Bosco - Firmiano
  Cod. 86467318
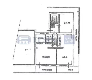
In der Reschenstr., einer der belebtesten und sichtbarsten Straßen Bozens, bieten wir ein Geschäft im Erdgeschoss mit hervorragender Straßenlage und einem Fenster zum Bürgersteig hin zum Verkauf an.
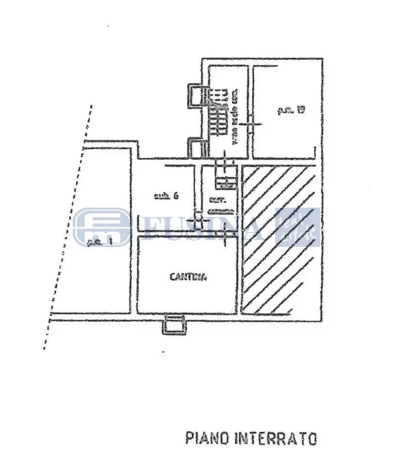
Die Immobilie, die 2023 komplett renoviert wurde, besteht aus einem Hauptverkaufsraum, einem Hinterzimmer, einem Badezimmer und einem Serviceraum, der auch über den Innenhof der Wohnanlage zugänglich ist. Im Untergeschoss befindet sich ein Lager.
Die Lage garantiert eine maximale Sichtbarkeit und einen ständigen Durchgang für Fußgänger und Fahrzeuge, was es ideal für verschiedene Arten von kommerziellen Aktivitäten, Studios oder Ausstellungsräume macht.
Die Immobilie verkauft die Wände und bietet eine ausgezeichnete Investition auf dem Bozner Gewerbeimmobilienmarkt.

Ausstattung

  Jalousien
  Möbliert
  Klimaanlage
  Angeschlossener Thermostat
  Behindertenzugang
  Internet
  Dreifachverglasung
    drucken

Ähnliche Immobilien

Gewerbe in vendita - Bozen negozio
Bozen
Cod. 86672861

1.050.000

In strategischer Lage am Drususallee bieten wir eine Immobilie von ca. 390 qm im Druso Retail Park zum Verkauf an, ein etablierter Standort mit führenden Marken wie Aldi, Lidl, Drogerie Markt, Kura.

Die Immobilie eignet sich sowohl als renditeorientierte Investition als auch als Betriebsstätte für Handels-, Dienstleistungs- oder Food-Unternehmen.

Stärken:

Hohe Sichtbarkeit

Verfügbare Parkplätze

Etabliertes urbanes Einzugsgebiet

Hervorragendes Vermietungspotenzial

Interessante Lösung für Investoren und Branchenakteure.

Gewerbe in vendita - Bozen negozio
Bozen
Cod. 86672968

495.000

An der Ecke von Palermo und Dalmatia str., in einem etablierten Geschäftsviertel mit hohem Verkehrsaufkommen, verkaufen wir ein vermietetes Geschäft: eine perfekte Gelegenheit für diejenigen, die eine sichere Investition suchen.
Gesamtfläche von 261 m² auf zwei Ebenen: 117 m² im Erdgeschoss (Verkaufs-/Ausstellungsfläche) und 144 m² im Untergeschoss (Lagerfläche).

Gewerbe in vendita - Bozen negozio
Bozen Gries - San Quirino
Cod. 86673092

250.000

Im Stadtteil Gries, in Bozen, bieten wir ein 50 m² großes Ladenlokal am Freiheitstr., einem Gebiet mit hohem Fußgänger- und Autoverkehr, zum Verkauf an. Die Immobilie erstreckt sich über zwei Ebenen und ist derzeit an eine gut etablierte Pizzeria vermietet, was eine ausgezeichnete Investitionsmöglichkeit darstellt.
Hauptmerkmale:
Erdgeschoss: 35 qm - Untergeschoss 35 qm
Lage: Freiheitstr., Bezirk Gries,

Diese Immobilie stellt eine ideale Gelegenheit für diejenigen dar, die in eine Renditeimmobilie in einer der bekanntesten Gegenden von Bozen investieren möchten.

Gewerbe in vendita - Bozen negozio
Bozen
Cod. 86673190

395.000

Wir bieten eine Gewerbeeinheit zum Verkauf an, die derzeit an ein primäres Kreditinstitut (BNL) vermietet ist. Sie befindet sich in der Palermostraße in Bozen, in einem gut erschlossenen Gebiet mit gutem Verkehrsfluss.
Die Immobilie erstreckt sich über eine einzige Etage und ist mit großen Fenstern zur Straße hin ausgestattet, die eine hervorragende Sicht und eine natürliche Helligkeit der Innenräume garantieren.
Der Mietvertrag wurde im Jahr 2020 mit einer Laufzeit von 6 + 6 Jahren unterzeichnet und bietet somit ein stabiles und sicheres Einkommen im Laufe der Zeit.
Die Investition ist aufgrund der strategischen Lage und der jährlichen Bruttorentabilität von 8 % besonders attraktiv.
Fläche: 150 Quadratmeter (Erdgeschoss)

Gewerbe in vendita - Bozen negozio
Bozen Gries - San Quirino
Cod. 86839609
60 m2
500.000

In einer der verkehrsreichsten Einkaufsstraßen Bozens, an der Kreuzung Drususallee und Marienheimweg, bieten wir eine Gewerbeimmobilie mit einer seltenen Eigenschaft an: Sichtbarkeit von zwei Straßenseiten in einem Umfeld mit etwa 40.000 zertifizierten täglichen Passagen.

Die Immobilie erstreckt sich über 200 qm Verkaufsfläche auf zwei Ebenen:
Erdgeschoss/Hochparterre (95 qm) mit Eck-Schaufenstern, ideal als Verkaufsraum oder Showroom, und
Kellergeschoss (95 qm) mit Sanitäranlagen, Lager und Betriebsräumen.
Zur Ergänzung gehört ein privater Garten von 60 qm – ein außergewöhnliches Element für eine gewerbliche Immobilie in zentraler Lage.
Flexibilität ist der strategische Vorteil: Die Immobilie ermöglicht eine einheitliche gewerbliche Nutzung oder die Unterteilung in zwei unabhängige Einheiten – eine Wohnung und ein Büro – was verschiedene Investitionsszenarien eröffnet.
Zentralgelegene Lage zwischen Stadtzentrum und MEBO, hervorragend an den öffentlichen Nahverkehr angebunden.
Preis: 500.000 €

xs
sm
md
lg