ufficio in affitto/locazione - bolzano

GRIES

Codice: 6246/5 - ufficio in affitto/locazione - bolzano - GRIES

Prestigioso Ufficio in Locazione

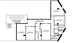
In via Mendola, proponiamo in locazione un ufficio di 183 m² situato al secondo piano di un edificio direzionale servito da ascensore.
L’immobile è stato recentemente ristrutturato e si presenta in ottime condizioni, con ambienti luminosi e ben distribuiti, ideali per studi professionali, società di consulenza o attività direzionali.
 
La distribuzione interna comprende quattro uffici indipendenti, una sala riunioni, un archivio, locali di servizio e spazi di disimpegno funzionali. L’ampia superficie finestrata garantisce eccellente luminosità naturale durante tutto l’arco della giornata.
L’ufficio è dotato di impianto di climatizzazione, posto auto coperto e si presta ad essere operativo da subito.
Una soluzione rappresentativa e funzionale, in una zona ben servita e facilmente accessibile, a pochi minuti dal centro di Bolzano.

 

Per maggiori informazioni o per fissare una visita:
📞 0471-977733
📧 afusina@realestate.bz.it
📧 amattiazzo@realestate.bz.it

Codice : 6246/5
Tipo offerta: Locazione
Tipo Immobile: Uffici
Regione Alto Adige
Provincia BZ
Località Bolzano
Zona GRIES
Mq: 183
Classe Energetica In fase di accertamento
Prezzo: n.d.

Diritto alla mediazione
L’incarico di mediazione con la società Fusina Re s.n.c. e/o i nostri agenti immobiliari è formalizzato con la stipula di un accordo (anche non scritto) e con la fruizione dei servizi offerti. Il compenso per la mediazione (provvigione) corrisposto dall’Acquirente è pari al 3% oltre ad IVA come per legge, calcolato sul prezzo d’acquisto dell’immobile. Il diritto alla provvigione matura nel momento in cui l’Acquirente viene a conoscenza dell’accettazione della sua proposta di acquisto da parte del Venditore. La provvigione verrà corrisposta alla Fusina RE s.n.c. contestualmente alla firma del contratto preliminare di compravendita (compromesso). L’importo lordo della provvigione può variare nel caso in cui ci sia un adeguamento dell’IVA.