ufficio in affitto/locazione - bolzano

GRIES

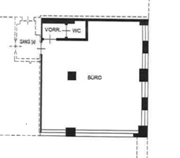
Codice: 9458/1 - ufficio in affitto/locazione - bolzano - GRIES

BZ - PIazza Mazzini: Affittiamo ufficio completamente ristrutturato, situato in Piazza Mazzini a Bolzano. L'unità, molto luminosa, dotata di impianto di riscaldamento e aria condizionata.
Attualmente in modalità open space, può essere suddivisa in più ambienti. Per informazioni contattare il numero 0471-977733.

Codice : 9458/1
Tipo offerta: Locazione
Tipo Immobile: Uffici
Regione Alto Adige
Provincia BZ
Località Bolzano
Zona GRIES
Mq: 54
Classe Energetica F
Prezzo: 1000

Diritto alla mediazione
L’incarico di mediazione con la società Fusina Re s.n.c. e/o i nostri agenti immobiliari è formalizzato con la stipula di un accordo (anche non scritto) e con la fruizione dei servizi offerti. Il compenso per la mediazione (provvigione) corrisposto dall’Acquirente è pari al 3% oltre ad IVA come per legge, calcolato sul prezzo d’acquisto dell’immobile. Il diritto alla provvigione matura nel momento in cui l’Acquirente viene a conoscenza dell’accettazione della sua proposta di acquisto da parte del Venditore. La provvigione verrà corrisposta alla Fusina RE s.n.c. contestualmente alla firma del contratto preliminare di compravendita (compromesso). L’importo lordo della provvigione può variare nel caso in cui ci sia un adeguamento dell’IVA.