ufficio in vendita - bolzano

INDUSTRIALE

Codice: 10827/1 - ufficio in vendita - bolzano - INDUSTRIALE

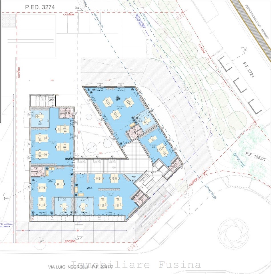
Lotto di terreno con progetto per Edificio Direzionale.

 

Il lotto oggetto dello sviluppo del progetto, ha una superficie di 2.500 mq e si trova in una posizione strategica a Bolzano sud, in un contesto economico in espansione. La destinazione d'uso 100% terziario, rende quest'area insediabile per per aziende di servizi (es. sanitario, finanziario e assicuraztivo...). L’edificio direzionale in progetto prevede uno sviluppo su quattro piani fuori terra, per un totale di ca. 2.600 mq e  due piani interrati destinati ad autorimesse e locali tecnici (ulteriori 2000 mq). Sarà realizzato con un design moderno e funzionale, garantendo la massima flessibilità per le destinazioni d’uso previste. L’edificio è destinato a funzioni direzionali e terziarie, con una cubatura totale di 17.000 metri cubi e una cubatura terziaria disponibile di 22.108 metri cubi. 

Per maggiori informazioni o per fissare un appuntamento:
📞 0471-977733
📧 afusina@realestate.bz.it

Codice : 10827/1
Tipo offerta: Vendita
Tipo Immobile: Uffici
Regione Alto Adige
Provincia BZ
Località Bolzano
Zona INDUSTRIALE
Mq: 2500
Classe Energetica In fase di accertamento
Prezzo: n.d.

Diritto alla mediazione
L’incarico di mediazione con la società Fusina Re s.n.c. e/o i nostri agenti immobiliari è formalizzato con la stipula di un accordo (anche non scritto) e con la fruizione dei servizi offerti. Il compenso per la mediazione (provvigione) corrisposto dall’Acquirente è pari al 3% oltre ad IVA come per legge, calcolato sul prezzo d’acquisto dell’immobile. Il diritto alla provvigione matura nel momento in cui l’Acquirente viene a conoscenza dell’accettazione della sua proposta di acquisto da parte del Venditore. La provvigione verrà corrisposta alla Fusina RE s.n.c. contestualmente alla firma del contratto preliminare di compravendita (compromesso). L’importo lordo della provvigione può variare nel caso in cui ci sia un adeguamento dell’IVA.