capannone in vendita - egna

Codice: 10883/1 - capannone in vendita - egna -

Capannone con uffici in vendita – Zona produttiva di Egna

Proponiamo in vendita un complesso aziendale moderno situato nella zona produttiva di Egna, con ampio piazzale e zona di carico e scarico.
L’immobile, costruito nel 2012, si distingue per l’elevata qualità costruttiva, la funzionalità degli spazi e la presenza di ampie superfici edificabili residue.
 
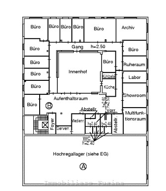
Descrizione dell’immobile

Lotto di 5.300 mq; la superficie edificata complessiva è di 1.524 m², suddivisa come segue:
  • Magazzino a scaffalature alte di 467 m², con altezza interna di 11,10 m
  • Edificio operativo su due livelli per un totale di 1.980 m², composto da:
    • Piano terra: 1057 mq magazzino e area di commissionamento
    • Primo piano: reparto uffici e amministrazione di circa 923 m²
L’area uffici è stata realizzata secondo i principi del Feng Shui, garantendo benessere e armonia negli ambienti di lavoro. Dispone inoltre di impianti tecnologici moderni, sale riunioni, sistema di climatizzazione e allarme, e di un impianto fotovoltaico autonomo con potenza di 97 kWh.
L’impianto fotovoltaico è attualmente collegato a contratto di immissione in rete attivo fino al 10.07.2032, con tariffa incentivata garantita.
Un immobile ideale per aziende commerciali, logistiche o direzionali, che unisce funzionalità, sostenibilità e potenziale di espansione.
 
 
Per maggiori informazioni o per fissare una visita:
📞 0471-977733
📧 afusina@realestate.bz.it
📧 amattiazzo@realestate.bz.it
Codice : 10883/1
Tipo offerta: Vendita
Tipo Immobile: Capannone
Regione Alto Adige
Provincia BZ
Località Egna
Zona
Mq: 2380
Classe Energetica A1
Indice Prestaz. Energ.: 27 kWh/m2 anno
Prezzo: 4.850.000

Diritto alla mediazione
L’incarico di mediazione con la società Fusina Re s.n.c. e/o i nostri agenti immobiliari è formalizzato con la stipula di un accordo (anche non scritto) e con la fruizione dei servizi offerti. Il compenso per la mediazione (provvigione) corrisposto dall’Acquirente è pari al 3% oltre ad IVA come per legge, calcolato sul prezzo d’acquisto dell’immobile. Il diritto alla provvigione matura nel momento in cui l’Acquirente viene a conoscenza dell’accettazione della sua proposta di acquisto da parte del Venditore. La provvigione verrà corrisposta alla Fusina RE s.n.c. contestualmente alla firma del contratto preliminare di compravendita (compromesso). L’importo lordo della provvigione può variare nel caso in cui ci sia un adeguamento dell’IVA.